Landstrasse 47
42781 Haan/Rheinland
Tel: 02129 / 36 229 - 25
E-Mail:
In Vermarktung
Kunstwerkerstrasse - 45136 Essen-Bergerhausen
Kaufpreis: 580.000,00 EUR
Doppelgarage-Kaufpreis: 40.000,- EUR
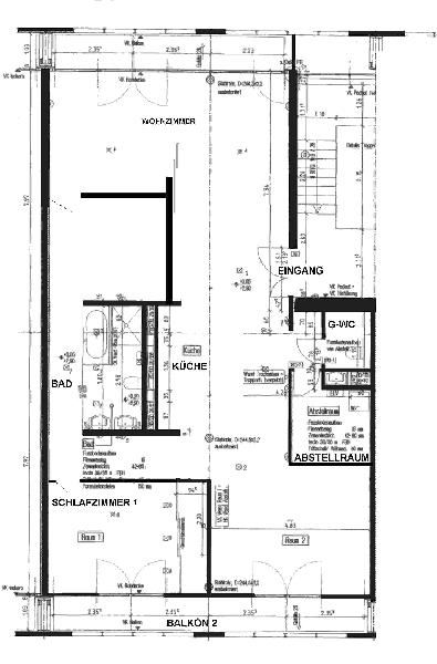
Wohnfläche ca.: 141,47 m²
Zimmer: 3,5
mtl. Nettokaltmiete zzgl. Stellplatz/Garage: € 1.750,- + € 200,-
Wohnungstyp: Maisonette/Loft
Etage: 1
Etagenzahl: 3
Nebenkosten: 411,00 EUR
Heizkosten sind in Nebenkosten enthalten: Ja
Besonderheiten: Balkon/Terasse, Gäste-WC, Keller, Personenaufzug, Einbauküche, stufenloser Zugang
Garage/Stellplatz: Garage / Tiefgarage
Objektzustand: gepflegt
Qualität der Ausstattung: Luxus
Bezugsfrei ab: nach Vereinbarung
Die Loft-Wohnungen sind aus der ehemaligen Dinnendahlschen Fabrik hervorgegangen, die 1925 aus Stahlfachwerk und Backstein erbaut wurde. Eine Musterbeispiel aus Alt und Neu mit denkmalgeschütztem Charakter. Die Wohnung selbst überzeugt durch Großzügigkeit, eine edle Ausstrahlung und wohnliche Atmosphäre. Eine hochwertige Ausstattung, vereint sich mit dem Spiel aus Licht und Schatten zu einem einzigartigen Wohngefühl.
Die exklusive Loft-Wohnung überzeugt durch Großzügigkeit, eine edle Ausstrahlung und ihre wohnliche Atmosphäre auf einer modern geschnittenen, großzügigen Wohnfläche. Eine hochwertige Ausstattung, vereint sich mit dem Spiel aus Licht und Schatten zu einem einzigartigen Wohngefühl. Die hochwertige Einbauküche vollendet die exklusive Ausstattung, ist allerdings nicht im Kaufpreis enthalten.
Lage:
Essen-Bergerhausen liegt südöstlich des Stadtkerns der Stadt Essen in direkter Nähe zur Natur. Die beliebten Ruhrauen mit ihren endlosen Wander- und Radwegen ermöglichen viele Gelegenheiten zur Erholung. Die hervorragende Infrastruktur bietet Ihnen Einkaufsmöglichkeiten, Kindergärten und Schulen im direkten Umfeld. Für den Arbeitsweg sind eine gute Anbindung an den ÖNV und an die A52 sehr hilfreich.
Sonstiges:
Die Tiefgarage mit Außen-Rolltor sowie ein elektrisches Tor für den großzügig bemessenen und abschließbaren Doppelstellplatz bieten ein Höchstmaß an Komfort. Von der Tiefgarage aus gelangen Sie auf kurzem Wege direkt in das Treppenhaus. Ein Kellerraum ist nicht vorhanden. Stattdessen existiert in der Loft-Wohnung ein Wirtschaftsraum. Die erzielbare Netto-Kaltmiete liegt bei € 1.750,- (= Euro 12,5 je qm Wohnfläche). Daraus ergibt sich eine Netto-Rendite von mehr als 3,5.
HAFTUNGSAUSSCHLUSS: Für die Richtigkeit oder Vollständigkeit der Objektangaben gemäß Eigentümer wird von der SCI-properties GmbH keine Haftung übernommen.
Verfügbarkeit: Energieausweis liegt vor
Erstellungsdatum: ab 01.05. 2014
Energieausweistyp: Verbrauchsausweis
Haupt-Energieträger: Gas
Baujahr: 2005
Heizungsart: Zentralheizung, Fussbodenheizung
Provision f. Käufer: 2% zzgl. gesetzl. MwSt. = 2,38% vom Kaufpreis
42781 Haan/Rheinland
Tel: 02129 / 36 229 - 25
E-Mail:
Rheinland
Wie können wir Ihnen weiterhelfen?
Rufen Sie uns an!
02129 / 36 229 - 25